Loué

Silly : vaste bureau ou commerce en plein centre

Description du bien

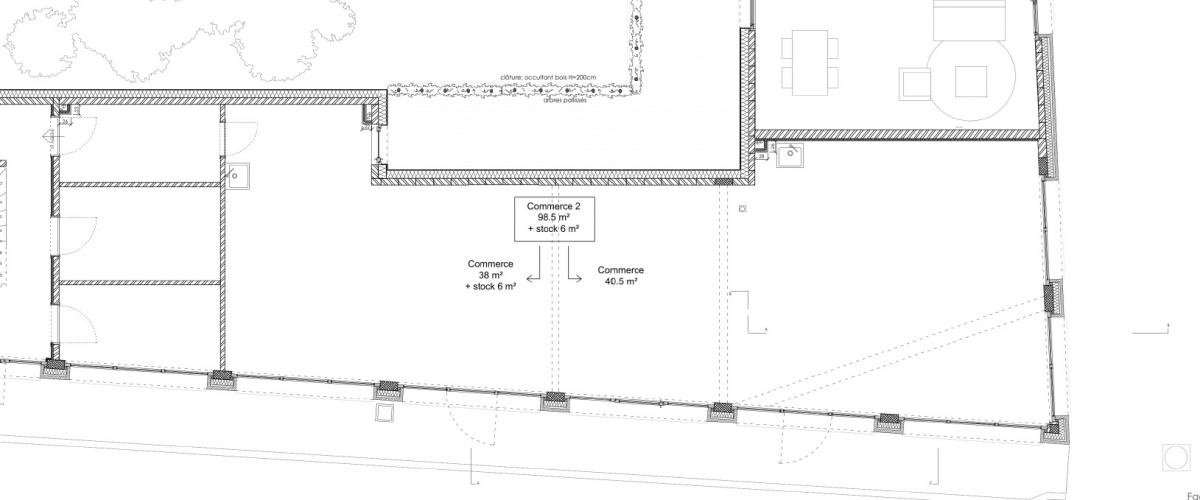
L’immobilière de la Sille a le plaisir de vous présenter cet espace d’exception en plein centre de Silly, à proximité directe de la place communale et du futur parking de plus de 60 places. Située dans le centre névralgique de la commune, cette surface commerciale de près de 100m² vous séduira par sa localisation et sa luminosité. Vous souhaitez lancer votre business ? Ou vous souhaitez développer votre activité professionnelle ? Bureau, commerce, …ce vaste local est fait pour vous ! Il se compose d’une spacieuse surface de +/-98m², d’une pièce de stockage de +/-6m², et d’un petit espace extérieur. Il bénéficie d’une excellente visibilité, d’une part grâce à sa très large vitrine, et d’autre part grâce au trafic généré par la proximité de 2 écoles, de multiples commodités (boucherie, pharmacie, Proxy Delhaize, restaurants, salon de coiffure, marché hebdomadaire, …), et de la gare de Silly convoitée par de nombreux navetteurs. Le bien étant nouvellement construit et au stade du gros-œuvre, vous pourrez laisser libre cours à votre imagination en termes d’aménagements. Loyer : 1075€/mois (en gros-œuvre). Possibilité d’aménagement partiel à charge du bailleur, moyennant révision du loyer. Charges communes : 100€/mois (forfait). Précompte immobilier à charge du locataire.

 

FINANCIER

 

Loyer : 1075 euros par mois

Charges communes : forfait de 100 euros par mois

Précompte immobilier : à charge du locataire

 

COMPOSITION

 

Pièce principale de +/-98.5m²

Stock de +/-6m²

Petit espace extérieur 

 

CARACTÉRISTIQUES

 

Châssis double vitrage

 

Le bien fait partie d’un immeuble dont les étages sont des appartements destinés à du logement.

 

LOCALISATION

 

Le bien est situé dans l’entité de Silly, dans le village-même de Silly, en plein centre.

 

Proximité de nombreuses commodités :

 

Marché dominical à +/-100m (sur la Place de Silly)

Au centre de Silly : bureau de poste, distributeur de billets, restaurants, brasserie, pharmacie, boucherie, salon de coiffure, opticien, bibliothèque, etc.

 

Gare de Silly à +/-2.5km (train direct vers Bruxelles en +/-30min)

Autoroute A8/E429 à +/-5.3km (Bruxelles, Tournai, Lille)

 

Ecole communale de Silly à +/-250m

Ecole libre de Silly à +/-350m

Ecole communale de Bassilly (maternelle et primaire) à +/-3.3km

Ecole communale de Marcq (immersion linguistique) à +/-9.2km

Ecole néerlandophone (Ak’Cent Bever) à +/-km

Collège Saint-Augustin à Enghien à +/-10.7km

Athénée Royal d’Enghien à +/-11.7km

 

Boucherie à +/-300m

Magasin d'alimentation Bio et Locale en VRAC à +/-2.9km

Pharmacie à +/-120m

« La maison d’Hôtes » (à Silly) à +/-100m (pâtisserie, épicerie, table d’hôtes, restaurant, chambres, Spa…)

Proxy Delhaize à +/-200m

Intermarché à +/-3.6km

Colruyt (Enghien) à +/-11km

Delhaize (Enghien) à +/-11.4km

Krëfel (Enghien) à +/-10.3km

Aldi à +/-10.7km

 

Zoning de Ghislenghien à +/-4.5km

Centre culturel à +/-290m

Bois de Silly à +/-2.7km

Parc d’Enghien à +/-11.9km

Golf Club d’Enghien à +/-12.6km

« Le Salon » (salle de concert) à +/-200m

Pairi Daiza à +/-9km

Complexe omnisports à +/-3.9km (sur Bassilly)

Terrain de tennis communal à +/-3.9km (sur Bassilly)

Complexe sportif à +/-10.4km (sur Enghien, avec : piscine publique, salles de sport, salle de fitness, terrains de tennis, etc.)

 

Biévène à +/-9.4km

Lessines à +/-12.7km

Ath à +/-14.9km

Soignies à +/-14.3km

Grammont à +/-19km

Halle à +/-27.8km

Tournai à +/-42.5km

Bruxelles à +/-46.3km

 

Hôpital d’Ath à +/-12.4km

Hôpital de Soignies à +/-16.1km

Hôpital de Halle à +/-28.2km

Hôpital de Renaix à +/-32.8km

Informations générales
Type de biencommerce
Localisation7830 Silly
Energie
PEBen cours de réalisation
N° PEB
PEB / Espec
PEB / Etotale
PEB / kg CO2/m².an
Chauffage (énergie / type) /
Autresdouble vitrage
Aménagement intérieur
Prix
Loyer1075 €
Charges communes100 €

Contactez-nous pour plus d'informations sur ce bien