Vendu

Silly : magnifique bâtisse de près de 600 m² (caves et grenier compris) avec un grand espace extérieur, garage... énorme potentiel !

Description du bien

Située dans la magnifique commune de Silly, cette incroyable bâtisse vous séduira par sa luminosité et son potentiel indéniable. D’une superficie de près de 600m² (caves et grenier compris), cette ancienne maison d’habitation actuellement affectée en banque vous offre un rez-de-chaussée de +/-180m², composé d’un hall d’entrée, d’un guichet, d’un hall central avec un bel escalier en bois, de 2 pièces très spacieuses aux hauts plafonds moulurés, d’un espace sanitaire, d’un hall intermédiaire vitré donnant sur les extérieurs, et d’une salle des coffres. Le 1er étage, de +/-150m², est doté d’un grand hall, d’une pièce avec kitchenette, de 3 bureaux, et d’une salle de réunion avec WC et petit bureau adjacent. Un énorme grenier de +/-165m², près de 110m² de caves…, bref, un bien offrant de très nombreuses possibilités et un libre cours à votre imagination : restaurant, commerce, habitations multiples, etc (sous réserve d’autorisation urbanistique selon le projet). Viennent se rajouter à cela un grand espace extérieur muré, un garage, un portail latéral…de quoi pimenter vos projets immobiliers les plus fous ! Chauffage central au mazout, double vitrage, nombreux splits. Localisation idéale sur la Place Communale de Silly, à +/- 2.6km de la gare (train direct vers Bruxelles en +/-30min), et à +/-5.3km de l’autoroute A8/E429 (Bruxelles, Tournai, Lille). Prix : 499 000 EUROS (Les propriétaires se réservent le droit d’apprécier la hauteur ainsi que la qualité de toutes les offres qui leur seront transmises.)

 

FINANCIER

 

Prix de vente : 499 000 EUROS (Les propriétaires se réservent le droit d’apprécier la hauteur ainsi que la qualité de toutes les offres qui leur seront transmises.)

 

COMPOSITION

 

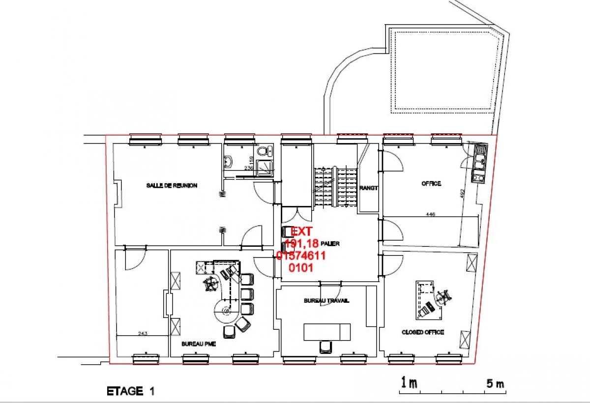
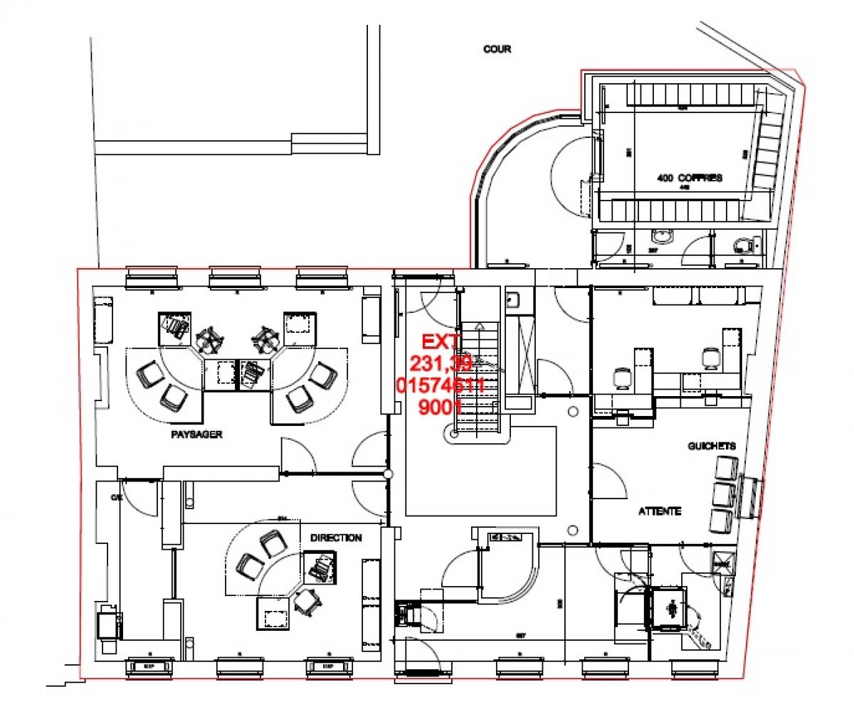
Rez-de-chaussée

 

Hall d'entrée

+/-13,6m²

Kot (ancien distributeur de billets)

+/-5,7m²

Pièce des guichets

+/-26,1m²

Hall central (escalier)

+/-25,3m²

Grande pièce arrière

+/-34,5m²

Grande pièce avant

+/-35,5m²

Pièce compteur électrique

+/-2,2m²

Hall intermédiaire arrière

+/-6,1m²

Espace WC

+/-4,1m²

Hall accès coffres

+/-10,2m²

Pièce des coffres

+/-16,1m²

   

Premier étage

 

Hall

+/-14,9m²

Pièce avec kitchenette

+/-24,7m²

Bureau

+/-20,9m²

Bureau

+/-14,5m²

Bureau

+/-24,6m²

Hall intermédiaire

+/-7,3m²

Salle de réunion

+/-23,4m²

WC

+/-3,6m²

Bureau adjacent à la salle de réunion

+/-12,7m²

Sas intermédiaire

+/-4,8m²

 

 

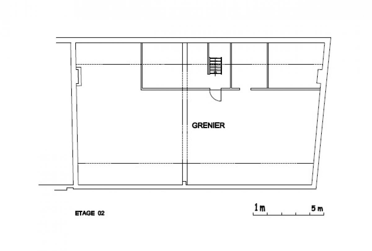
Deuxième étage

 

Grenier

+/-165m²

 

 

Sous-sols

 

Caves

+/-111m²

 

Extérieurs

 

Garage

 

Grand espace extérieur muré avec porte latérale

 

Terrasse

 

 

 

 

CARACTERISTIQUES

 

Bâtiment commercial

 

Revenu cadastral non indexé : 3 936 euros

Surface parcelle (selon la matrice cadastrale) : 10a27

 

Système de chauffage central au mazout

Chaudière Viessmann dans la cave (avec permis d’environnement)

Cuve à mazout dans la cave

Châssis double vitrage

Nombreux splits dans l’ensemble du bâtiment

 

LOCALISATION

 

Sur la place communale de Silly

 

Commodités à proximité :

 

Sur la place même de Silly : pharmacie, coiffeur, B-post, restaurants, opticien, orthoshop, marché hebdomadaire le dimanche

 

Gare de Silly à +/-2.6km (train direct vers Bruxelles en +/-30min)

Autoroute A8/E429 à +/-5.3km (Bruxelles, Tournai, Lille)

Arrêt de bus à +/-120m

 

Ecole communale de Bassilly (maternelle et primaire) à +/-3.3km

École communale de Silly à +/-300m

Ecole communale de Marcq (immersion linguistique) à +/-9.2km

École libre de Silly à +/-280m

Collège Saint-Augustin à Enghien à +/-10.2km

Athénée Royal d’Enghien à +/-10.7km

 

Boucherie à +/-400m

Magasin d'alimentation Bio et Locale en VRAC à +/-3km

Epicerie avec produits artisanaux, locaux et BIO à +/-1.6km

Histoire sans faim (épicerie fine, traiteur, petite restauration) à +/-140m

 

Proxy Delhaize à +/-250m

Carrefour Market à +/-3.8km

Colruyt à +/-10.3km

Delhaize à +/-10.7km

Grande surface BIO à +/-10.4km

Krëfel à +/-10.4km

 

Brasserie de Silly à +/-170m

Salle de concert à +/-230m

Maison d’hôtes à +/-140m

Bibliothèque à +/-110m

Centre culturel à +/-210m

 

Biévène à +/-9.5km

Ath à +/-13km

Soignies à +/-13.7km

Grammont à +/-18.9km

Lessines à +/-11.8km

Halle à +/-30.2km

 

Pairi Daiza à +/-8.8km

Complexe omnisport à +/-3.8km (Sillysports)

Terrain de tennis communal à +/-4km

Complexe sportif à +/-10.5km (piscine publique, salles de sport, salle de fitness, terrains de tennis, etc.)

 

Hôpital d’Ath à +/-12.5km

Hôpital de Soignies à +/-14.9km

Hôpital de Grammont à +/-18.8km

Hôpital de Halle à +/-30.1km

 

 

Informations générales
Type de biencommerce
Localisation7830 Silly
Superficie terrain1027 m²
R.C. (non indexé)3936.00 €
Energie
PEBen cours de réalisation
N° PEB
PEB / Espec
PEB / Etotale
PEB / kg CO2/m².an
Chauffage (énergie / type)chauffage central: mazout /
Autresdouble vitrage
Parking
Intérieur1
Aménagement intérieur
Services
Eau de ville1
Electricité1
Prix499000 €

Contactez-nous pour plus d'informations sur ce bien