Vendu

Hellebecq : très beau terrain en campagne avec permis d

Description du bien

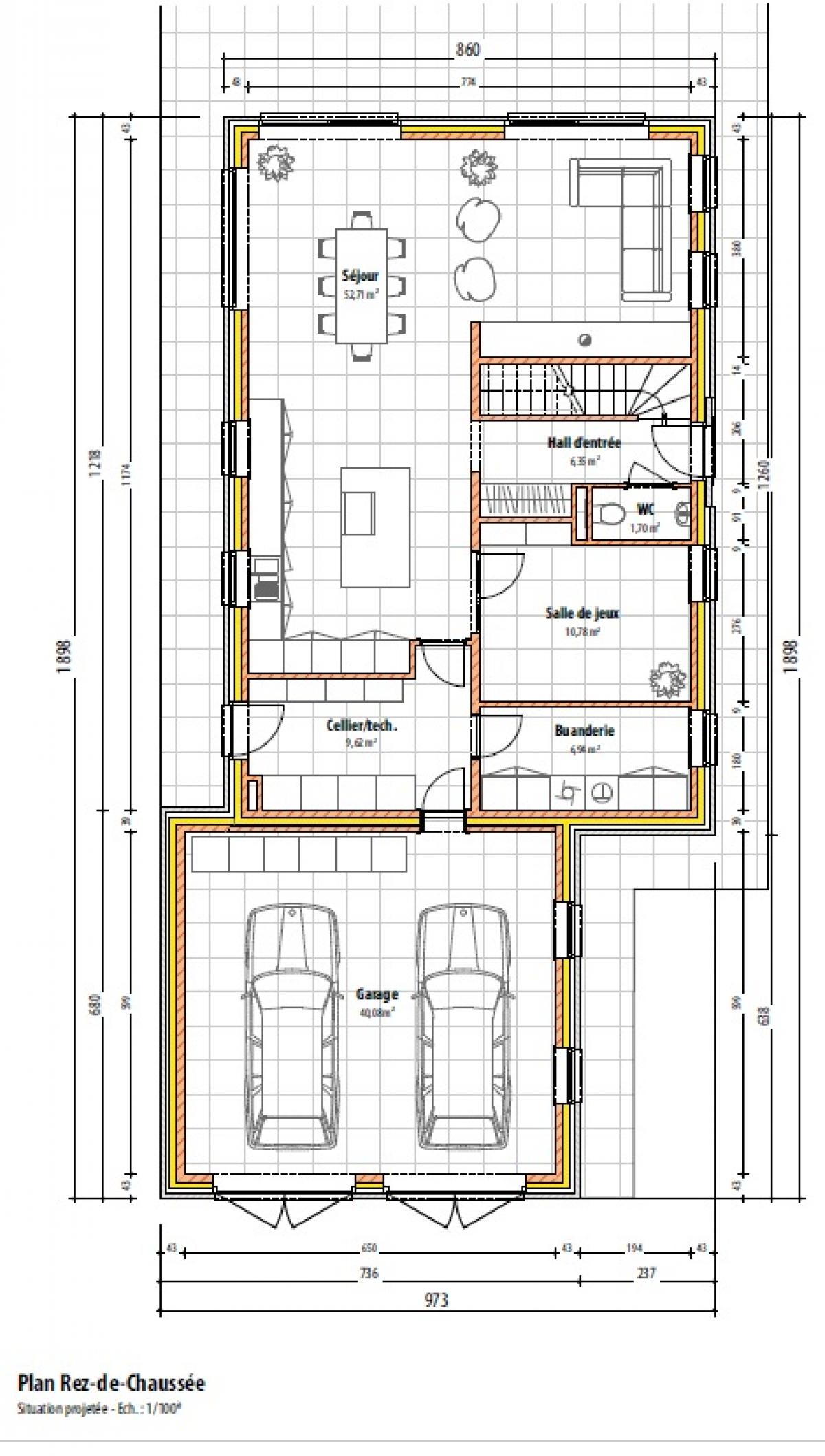
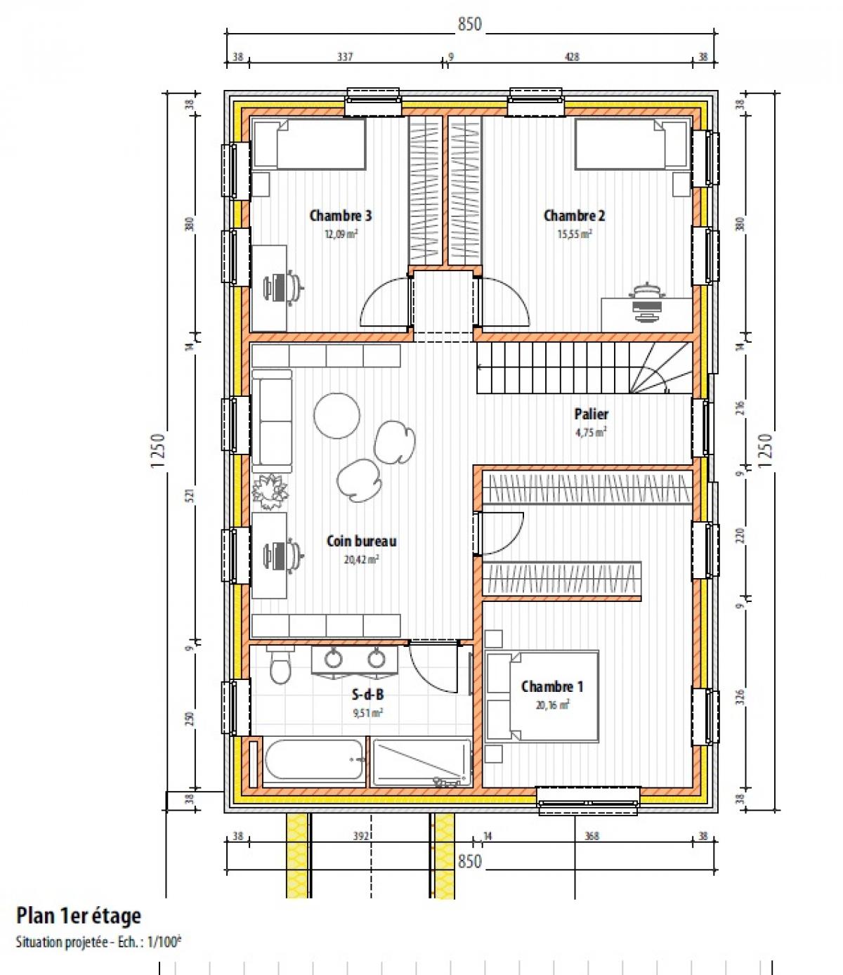
Nichée dans la charmante campagne Sillienne, au sein du village d’Hellebecq, cette vaste parcelle de 26a24ca est située le long d’une rue calme, dans un environnement agréable et verdoyant. Outre le fait de jouir d’un cadre paisible, ce spacieux terrain bénéficie de la proximité de la gare de Silly (qui se trouve à +/-4.6km, avec un train direct vers Bruxelles en +/-30min), et de l’autoroute E429 (qui se trouve à +/-3.4km). De plus, la place du village et son école communale se trouvent à moins d’1km ! Un permis d’urbanisme a été octroyé en novembre 2023 pour la construction d’une magnifique habitation 4 façades, sur 2 niveaux, avec un garage 2 voitures, un séjour de près de 50m² avec cuisine ouverte, salle de jeux, buanderie, 3 chambres (dont une chambre parentale de 20m²), salle de bains, coin bureau, cellier. Largeur du terrain : +/-17m. Profondeur du terrain : +/-130m. Prescriptions urbanistiques disponibles sur demande à l’agence. Diverses commodités à proximité : grande surface à +/-2.5km, complexe omnisport à +/-3.4km, centre de Silly à +/-3.6km (avec pharmacie, boucherie, salon de coiffure, B-post, Proxy Delhaize, restaurants, opticien, marché hebdomadaire le dimanche,…). Prix : faire offre à partir de 130 000 € sous réserve d’acceptation des vendeurs.

 

FINANCIER

 

Prix : faire offre à partir de 130 000 € sous réserve d’acceptation des vendeurs

 

[Les propriétaires se réservent le droit d’apprécier la hauteur ainsi que la qualité de toutes les offres qui leur seront transmises.]

 

CARACTÉRISTIQUES

 

Terrain repris comme le lot n°1 en un plan de géomètre daté du 07/11/2016

Surface du terrain selon matrice cadastrale : 26a24ca

Surface du terrain selon plan de géomètre : 26 ares 23 ca 96 dm²

Revenu cadastral non indexé : 34 euros

Largeur du terrain : +/-17.57m

Profondeur du terrain : +/-130m

Plan de Secteur : zone d’habitat à caractère rural sur une profondeur de +/- 50m à partir du bord de la voirie & le reste en zone agricole

Guide Communal d’Urbanisme : aire de bâti d'intérêt paysager & aire rurale agricole

 

Prescriptions urbanistiques disponibles sur simple demande à l’agence

 

LOCALISATION

 

Dans l’entité de Silly, et plus précisément dans le village d’Hellebecq

 

Commodités à proximité :

 

Gare de Silly à +/-4.6km (train direct vers Bruxelles en +/-30min)

Autoroute A8/E429 à +/-3.4km (Bruxelles, Tournai, Lille)

 

Place d’Hellebecq à +/-800m

Place de Silly à +/-3.6km

Au centre du village de Silly : pharmacie, boucherie, salon de coiffure, B-post, restaurants, opticien, marché hebdomadaire le dimanche

 

École communale d’Hellebecq à +/-800m

Ecole communale de Bassilly à +/-4km

École libre de Silly à +/-3.9km

École communale de Silly à +/-3.5km

Collège Saint-Augustin (Enghien) à +/-10.7km

Athénée Royal (Enghien) à +/-11.7km

École communale de Marcq (immersion linguistique) à +/-9.7km

École néerlandophone de Biévène (Ak’Cent) à +/-7.5km

Basisschool Hunnegem (Geraardsbergen) à +/-15.8km

Sint-Catharinacollege (Geraardsbergen) à +/-17.4km

 

Intermarché à +/-2.5km

Boucherie (Dominique et Carine) à +/-3.3km

Boulangerie (Le Comptoir du Pain) à +/-3.3km

Colruyt (Enghien) à +/-11km

Delhaize (Enghien) à +/-11.4km

Aldi (Ath) à +/-10.7km

Proxy Delhaize (Silly) à +/-3.8km

Magasin d'alimentation Bio et Locale en VRAC à +/-3.8km

« La Maison d’Hôtes » à +/-3.5km (restaurant, chambres)

Krëfel à +/-11.1km

 

Pairi Daiza à +/-12.1km

Complexe omnisport à +/-3.4km (Sillysports)

Terrain de tennis communal à +/-3.4km

Complexe sportif à +/-11.2km (piscine publique, salles de sport, salle de fitness, terrains de tennis, etc.)

Brasserie de Silly à +/-3.6km

Salle de concert à +/-3.7km

Bibliothèque communale à +/-3.7km

Centre culturel à +/-3.6km

 

Biévène à +/-7.7km

Lessines à +/-9.8km

Ath à +/-13.5km

Enghien à +/-11km

Soignies à +/-17.8km

Grammont à +/-17.3km

Halle à +/-27.8km

Tournai à +/-42.8km

Bruxelles à +/-48.1km

 

Informations générales
Type de bienmaison
Localisation7830 Hellebecq
Superficie terrain2624 m²
Disponibleà l'acte
Energie
PEBen cours de réalisation
N° PEB
PEB / Espec
PEB / Etotale
PEB / kg CO2/m².an
Chauffage (énergie / type) /
Autres
Aménagement intérieur
Prix130000 €

Contactez-nous pour plus d'informations sur ce bien