Hellebecq : terrain de 29a06ca dans un environnement calme et verdoyant

Description du bien

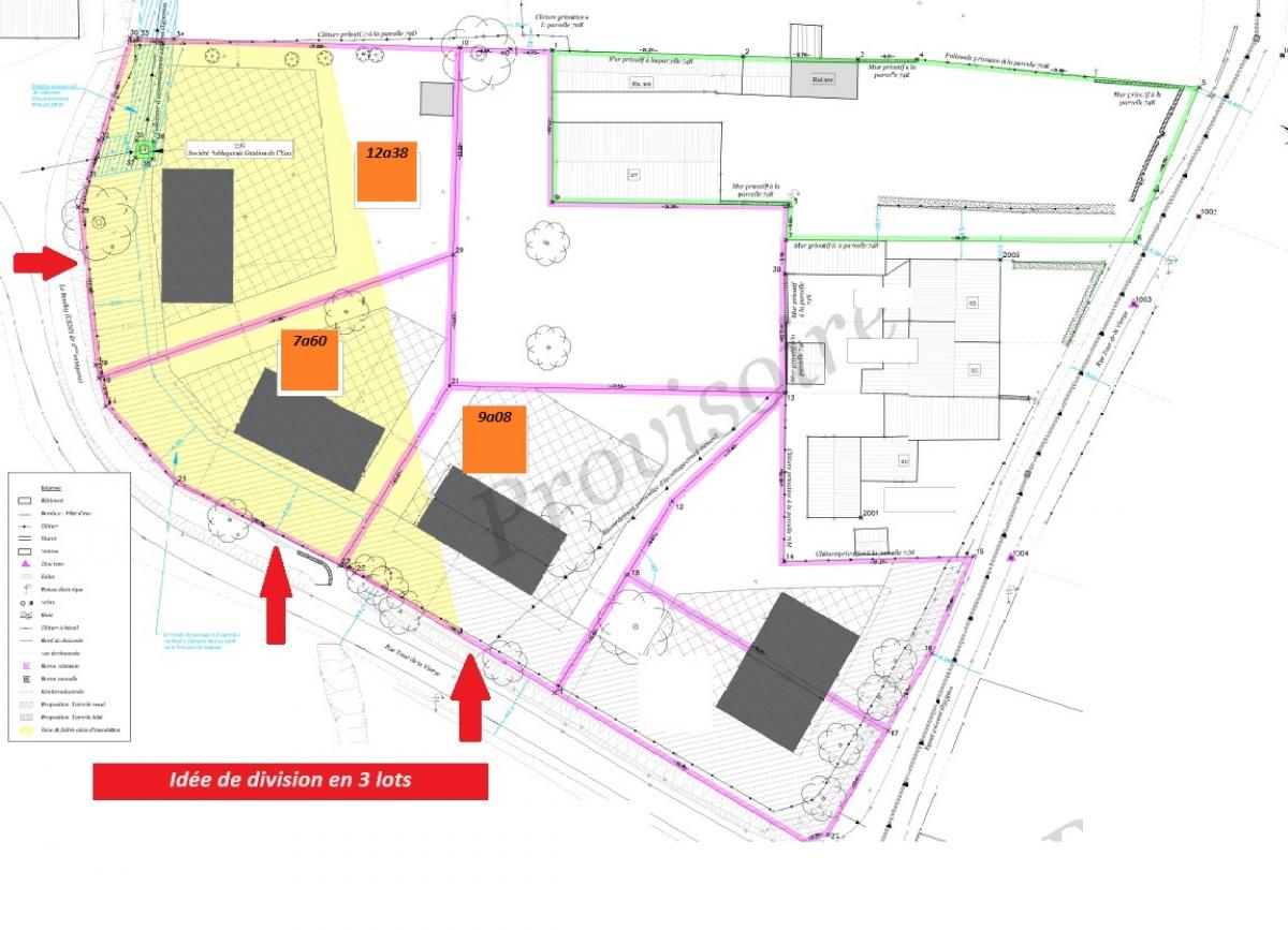
Nichée en pleine campagne Sillienne, au sein du village d’Hellebecq, cette parcelle de 29a06ca (lot « reste ») est idéalement située le long d’une rue calme, dans un environnement verdoyant rimant avec calme et zénitude. Outre le fait de jouir d’un cadre paisible, ce spacieux terrain bénéficie de la proximité de la gare de Silly (qui se trouve à +/-4.5km, avec un train direct vers Bruxelles en +/-30min), et de l’autoroute A8/E429 (qui se trouve à +/-2.8km). La place du village et son école communale se trouvent à environ 300m. Possible division du terrain en plusieurs lots sous réserve d’acceptation urbanistique. Existence d’un plan avec projet de division en 3 lots pouvant être transmis aux candidats acquéreurs (3 lots de 12a38ca, 7a60ca, et 9a08ca, et sous réserve d’acceptation d’un permis d’urbanisation). Prix : faire offre à partir de 350 000 € sous réserve d’acceptation des vendeurs. Guide communal d’urbanisme : aire de bâti villageois-centre. Prescriptions urbanistiques disponibles sur demande à l’agence. Diverses commodités à proximité : grande surface à +/-2.1km, complexe omnisport à +/-4.1km, centre de Silly à +/-3.6km (avec pharmacie, boucherie, coiffeur, B-post, Proxy Delhaize, restaurants, opticien, marché hebdomadaire le dimanche,…).

 

FINANCIER

 

Prix : faire offre à partir de 350 000 € sous réserve d’acceptation des vendeurs

 

[Les propriétaires se réservent le droit d’apprécier la hauteur ainsi que la qualité de toutes les offres qui leur seront transmises.]

 

CARACTÉRISTIQUES

 

Lot « reste » de 29a06ca

Il s’agit d’une partie de la parcelle B73n.

La parcelle B73n se situe :

-au plan de secteur d'Ath-Lessines- Enghien : en zone habitat

-au schéma de développement communal : en zone d'habitat à caractère villageois-centre

-au guide communal d'urbanisme : en aire de bâti villageois-centre

 

Prescriptions urbanistiques disponibles sur simple demande à l’agence

 

LOCALISATION

 

Dans l’entité de Silly, et plus précisément dans le village d’Hellebecq

 

Commodités à proximité :

 

Gare de Silly à +/-4.5km (train direct vers Bruxelles en +/-30min)

Autoroute A8/E429 à +/-2.8km (Bruxelles, Tournai, Lille)

 

Place d’Hellebecq à +/-300m

Place de Silly à +/-3.6km

Sur la place même de Silly : pharmacie, coiffeur, B-post, restaurants, opticien, marché hebdomadaire le dimanche

 

École communale d’Hellebecq à +/-350m

Ecole communale de Bassilly à +/-4km

École libre de Silly à +/-3.9km

École communale de Silly à +/-3.5km

Collège Saint-Augustin (Enghien) à +/-10.6km

Athénée Royal (Enghien) à +/-11.1km

École communale de Marcq (immersion linguistique) à +/-9.7km

Basisschool Hunnegem (Geraardsbergen) à +/-17.8km

Sint-Catharinacollege (Geraardsbergen) à +/-17.9km

 

Intermarché à +/-2.1km

Boucherie (Dominique et Carine) à +/-3.2km

Boulangerie (l’Artisanal) à +/-1.8km

Colruyt (Ath) à +/-10.4km

Delhaize (Ath) à +/-9km

Aldi (Ath) à +/-9.6km

Proxy Delhaize à +/-3.7km

Magasin d'alimentation Bio et Locale en VRAC à +/-3.8km

Maison d’hôtes à +/-3.5km (boulangerie, pâtisserie, épicerie, table d’hôtes, restaurant, chambres, spa)

Histoire sans faim (restauration) à +/-3.5km

Krëfel à +/-11.1km

 

Pairi Daiza à +/-13.6km

Complexe omnisport à +/-4.1km (Sillysports)

Terrain de tennis communal à +/-4.1km

Complexe sportif à +/-11.2km (piscine publique, salles de sport, salle de fitness, terrains de tennis, etc.)

Brasserie de Silly à +/-3.6km

Salle de concert à +/-3.7km

Bibliothèque communale à +/-3.7km

Centre culturel à +/-3.6km

 

Biévène à +/-8.4km

Lessines à +/-9.5km

Ath à +/-11.3km

Enghien à +/-11.8km

Soignies à +/-17.5km

Grammont à +/-17.9km

Halle à +/-28.3km

Tournai à +/-40.7km

Bruxelles à +/-47.9km

 

Informations générales
Type de bienterrain à bâtir
Localisation7830 Hellebecq
Superficie terrain2906 m²
Disponibleà l'acte
Energie
PEBen cours de réalisation
N° PEB
PEB / Espec
PEB / Etotale
PEB / kg CO2/m².an
Chauffage (énergie / type) /
Autres
Aménagement intérieur
Prix350000 €

Contactez-nous pour plus d'informations sur ce bien